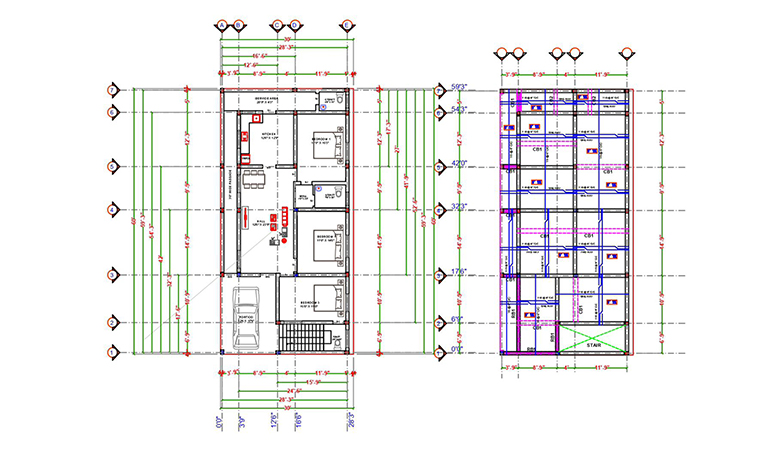
Arrahman Construction provides detailed floor plan and structural drawing services designed to maximize space efficiency and ensure structural integrity. Our expert team collaborates with clients to create customized layouts that align with their specific needs and preferences. Every aspect of the design is carefully planned, ensuring optimal functionality while maintaining aesthetic appeal. Whether you're building a new home or renovating an existing space, our floor plans are tailored to create a comfortable and well-organized living environment.
In addition to floor planning, our structural drawings ensure that your building is safe, durable, and built to withstand the test of time. We pay meticulous attention to engineering details, ensuring that all structural components are designed with precision. By combining architectural vision with engineering expertise, we deliver drawings that not only meet regulatory standards but also optimize the construction process, leading to efficient and cost-effective project completion.

